Ok, let's think about this. Affordable living is becoming an issue and Cameron Development is trying very hard to give you a house, a place you can call home. This two apartment home is definitely one the best values in home prices today. We have this perfect home that you can start out with or retire in. There is a full basement with a one bedroom apt, family room and laundry for the main floor plus the lot is very large for you to add a garage or shed down the road. This home will give you a new home. Let's start you out right and get you into a nice affordable home or help you downsize to a retirement home. You could raise a family with the extra space down. A perfect, private quiet street neighbourhood and don't forget the lake access for canoeing, swimming and fishing. To be built (id:55727)
| MLS® Number | 1295220 |
| Property Type | Single Family |
| Bathroom Total | 2 |
| Bedrooms Above Ground | 2 |
| Bedrooms Total | 2 |
| Architectural Style | Bungalow |
| Constructed Date | 2025 |
| Construction Style Attachment | Detached |
| Exterior Finish | Vinyl Siding |
| Flooring Type | Mixed Flooring |
| Foundation Type | Poured Concrete |
| Heating Fuel | Electric |
| Stories Total | 1 |
| Size Interior | 1,980 Ft2 |
| Type | Two Apartment House |
| Utility Water | Municipal Water |
| Acreage | No |
| Landscape Features | Not Landscaped |
| Sewer | Septic Tank |
| Size Irregular | 1/2 Acre |
| Size Total Text | 1/2 Acre|4,051 - 7,250 Sqft |
| Zoning Description | Residential |
| Level | Type | Length | Width | Dimensions |
|---|---|---|---|---|
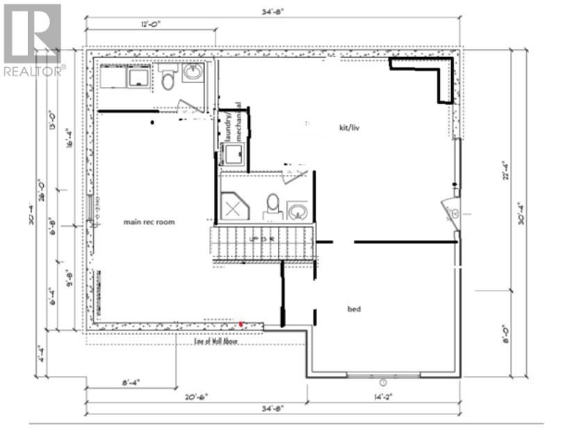
| Basement | Family Room | 14 x 19 | ||
| Basement | Laundry Room | 7 x 10 | ||
| Basement | Bath (# Pieces 1-6) | 6 x 8 | ||
| Basement | Not Known | 14 x 12 | ||
| Basement | Not Known | 12 x 14 | ||
| Basement | Not Known | 22 x 12 | ||
| Main Level | Ensuite | 6.3 x 7.8 | ||
| Main Level | Bedroom | 11.9 x 11.9 | ||
| Main Level | Bath (# Pieces 1-6) | 5.2 x 7.8 | ||
| Main Level | Bedroom | 10.5 x 11.6 | ||
| Main Level | Living Room | 11.6 x 13.7 | ||
| Main Level | Eating Area | 7.5 x 13.7 | ||
| Main Level | Kitchen | 10.5 x 13.7 | ||
| Main Level | Foyer | 4.8 x 7.3 |
Contact us for more information
Compare listings
Compare