This is a mere listing. (Private Sale) If you are viewing this listing on realtor.ca and would like additional information and/or arrange a viewing, please click on the ""MORE INFORMATION"" button immediately below the ""PROPERTY SUMMARY"" to obtain the developer's contact information. Welcome to 15 Port Rexton Place, a well-appointed two-apartment home located in the desirable community of Paradise. This property represents the last remaining new build on a quiet cul-de-sac, offering a rare opportunity in an established and family-friendly neighbourhood. The main unit features a bright, open-concept layout with spacious living, dining, and kitchen areas designed for both comfort and functionality. The home includes three well-sized bedrooms and two and a half bathrooms, providing ample space for family living. The basement level offers a dedicated rec room with a powder room as part of the main unit, adding valuable additional living space. A self-contained two-bedroom basement apartment provides excellent income potential or flexible options for extended family living. Conveniently located close to schools, walking trails, and amenities, this property is well suited for owner-occupiers, investors, or multi-generational households seeking a new construction home in a quiet setting. Presently Under Construction - Ready In 120 Days (id:55727)
| MLS® Number | 1293278 |
| Property Type | Single Family |
| Bathroom Total | 4 |
| Bedrooms Above Ground | 3 |
| Bedrooms Below Ground | 2 |
| Bedrooms Total | 5 |
| Appliances | Dishwasher, Refrigerator, Microwave, Stove |
| Constructed Date | 2025 |
| Construction Style Attachment | Detached |
| Construction Style Split Level | Split Level |
| Exterior Finish | Vinyl Siding |
| Flooring Type | Mixed Flooring |
| Foundation Type | Concrete |
| Half Bath Total | 1 |
| Heating Fuel | Electric |
| Size Interior | 2,780 Ft2 |
| Type | Two Apartment House |
| Utility Water | Municipal Water |
| Acreage | No |
| Sewer | Municipal Sewage System |
| Size Irregular | 716 Sqm |
| Size Total Text | 716 Sqm|7,251 - 10,889 Sqft |
| Zoning Description | Res. |
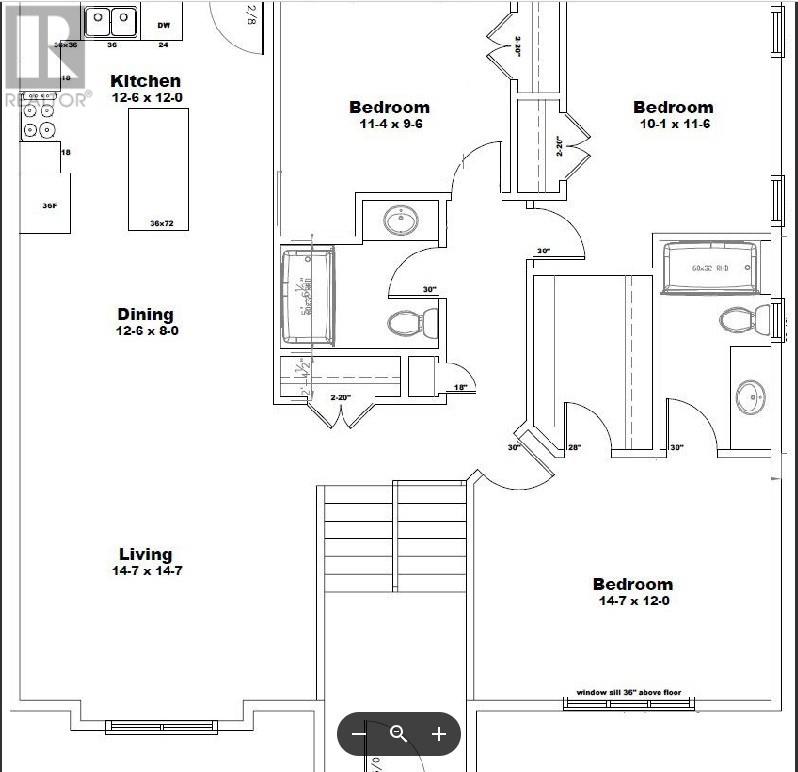
| Level | Type | Length | Width | Dimensions |
|---|---|---|---|---|
| Basement | Recreation Room | 13.11 x 12.4 | ||
| Basement | Bath (# Pieces 1-6) | 2pc | ||
| Basement | Bath (# Pieces 1-6) | 4pc | ||
| Basement | Bedroom | 10.0 x 11.0 | ||
| Basement | Bedroom | 10.6 x 11.0 | ||
| Basement | Living Room | 13.11 x 12.4 | ||
| Basement | Dining Room | 8.0 x 9.0 | ||
| Basement | Kitchen | 13.11 x 12.4 | ||
| Main Level | Bath (# Pieces 1-6) | 4pc | ||
| Main Level | Ensuite | 4pc | ||
| Main Level | Bedroom | 10.1 x 11.6 | ||
| Main Level | Bedroom | 14.4 x 9.6 | ||
| Main Level | Primary Bedroom | 14.7 x 12.0 | ||
| Main Level | Living Room | 14.7 x 14.7 | ||
| Main Level | Dining Room | 12.6 x 8.0 | ||
| Main Level | Kitchen | 12.6 x 12.0 |
Contact us for more information
Compare listings
Compare