1-3 Kinglet Way, Conception Bay South, Newfoundland & Labrador a1w 0h6 (29364670) - TED WILLIAMS

1-3 Kinglet Way Conception Bay South, Newfoundland & Labrador a1w 0h6

4 Bedroom 4 Bathroom 3,042 ft2
2 Level Air Exchanger Baseboard Heaters, Mini-Split Partially Landscaped

$799,900

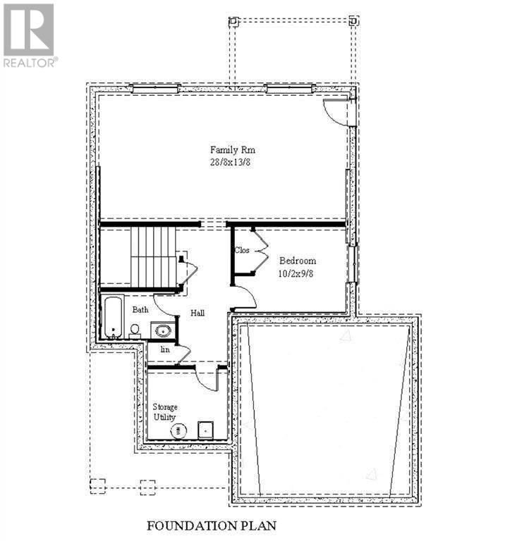
Construction starting soon by McCrowe Homes on this stunning, fully developed executive home located in sought after Kingfisher Estates in sunny Conception Bay South. This home is situated on an over sized lot with ocean views. The main floor features and open concept floor plan-ideal for entertaining. The bright and spacious kitchen has an island with seating as well as a massive walk in pantry for all your storage needs. There is a half bath on this floor as well. Upstairs has 3 large bedrooms include the stunning primary with 5 piece ensuite and large walk in closet. A cozy patio off the primary bedroom showcases the stunning ocean views. There is also a spacious main bathroom on this floor and second floor laundry for your convenience. The developed basement offers a large rec room with walk out to the back yard, 4th bedroom, full bathroom, and storage space. Located close to all major amenities, schools, walking trails etc. build your dream home today! (id:55727)

Property Details

MLS® Number 1294618
Property Type Single Family

Building

Bathroom Total 4
Bedrooms Above Ground 3
Bedrooms Below Ground 1
Bedrooms Total 4
Architectural Style 2 Level
Constructed Date 2026
Construction Style Attachment Detached
Cooling Type Air Exchanger
Exterior Finish Vinyl Siding
Flooring Type Mixed Flooring
Half Bath Total 1
Heating Fuel Electric
Heating Type Baseboard Heaters, Mini-split
Stories Total 2
Size Interior 3,042 Ft2
Type House
Utility Water Municipal Water

Parking

Attached Garage

Land

Access Type Year-round Access
Acreage No
Landscape Features Partially Landscaped
Sewer Municipal Sewage System
Size Irregular 67.11x87.72x61.41x127.82
Size Total Text 67.11x87.72x61.41x127.82|7,251 - 10,889 Sqft
Zoning Description Res

Rooms

Level Type Dimensions
Second Level Other 12.8 x 6.4
Second Level Laundry Room 8.6 x 6
Second Level Bath (# Pieces 1-6) 4 pcs
Second Level Bedroom 11 x 10.8
Second Level Bedroom 10.4 x 12.4
Second Level Ensuite 5 pcs
Basement Bath (# Pieces 1-6) 4 pcs
Basement Bedroom 10 x 12
Basement Recreation Room 28.8 x 13.8
Main Level Primary Bedroom 16 x 14.11
Main Level Dining Room 12 x 9.6
Main Level Living Room 16.2 x 14.10
Main Level Kitchen 12.10 x 10.4

Contact Us

Contact us for more information

Your Favourites

 

No Favourites Found

 

Compare listings

Compare